PROPERTY LOCATION:
KEY FEATURES:
- Exclusive retirement development for the over 60s in a central village location
- One and two-bedroom self-contained apartments with private entrances
- Modern kitchens with integrated appliances and accessible shower rooms
- Walk-in wardrobes and en suites in selected two-bedroom apartments
- Landscaped communal gardens and a sociable Owners’ Lounge
- 24-hour Careline system, video entry, and on-site Lodge Manager
- Lift access to all floors and a Guest Suite for visiting family
- Re-sale, letting support, and guest stays available at other Churchill sites
PROPERTY DETAILS:
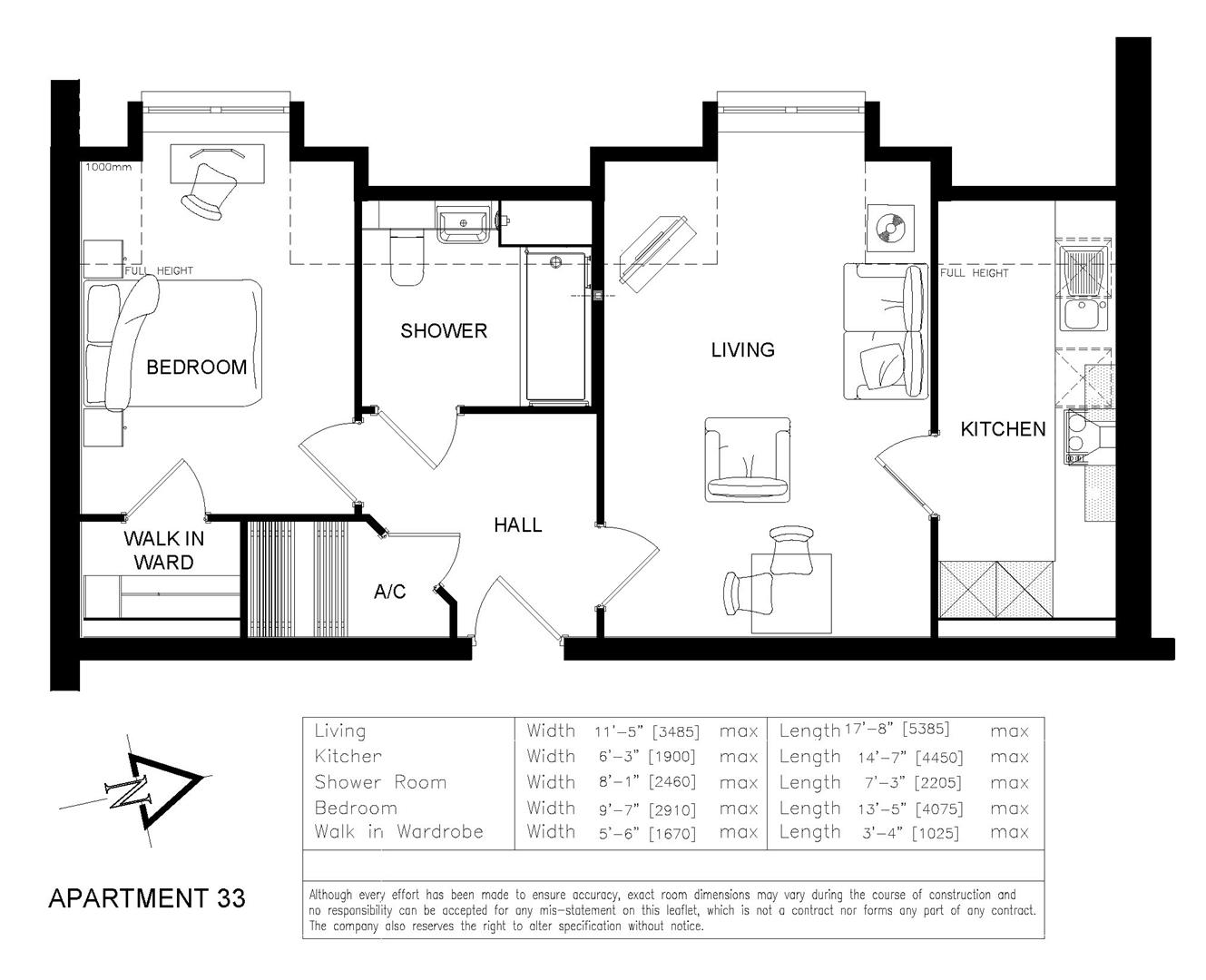
Manns Lodge is an exclusive new retirement development for the over 60s, ideally situated just off the High Street with gated access to the village centre and its excellent selection of shops, cafés, and amenities. This spacious one-bedroom first-floor apartment enjoys a desirable Westerly orientation and features a bright, airy living area, a contemporary kitchen with integrated appliances, a generous bedroom with a walk-in wardrobe, and a stylish, accessible shower room.Each apartment is fully self-contained with its own front door, offering privacy and independence, while the beautifully appointed Owners’ Lounge provides a warm and welcoming space to relax or socialise with neighbours. The landscaped communal gardens are professionally maintained, and selected apartments benefit from balconies, terraces, or private outdoor areas.Residents enjoy the reassurance of a 24-hour emergency Careline system, secure video entry, and the daily support of an on-site Lodge Manager—offering added peace of mind for both homeowners and their families. A lift serves all floors, and a fully furnished Guest Suite is available for visiting family and friends. For those who enjoy travel, you have the opportunity to stay in the guest suite at other Lodges across the country for a small fee. Churchill also provides re-sale and letting support, with longer-term rental options available, subject to age criteria.Please note: Buyers must be aged 60 or over (partners may be 55+). The images used in this advert are either CGI or photographs of another Churchill development and are for indicative marketing purposes only.
PROPERTY INFORMATION:
RECENTLY VIEWED PROPERTIES :
| 3 Bedroom Flat / Apartment - Tudor Court, Liphook | £475,000 |
| 3 Bedroom Terraced House - Shipley Court, Liphook | £419,950 |
| 2 Bedroom Flat / Apartment - Albury Road, Guildford | £440,000 |


























