PROPERTY LOCATION:
KEY FEATURES:
- Prime development site
- 5 new units
- 2 x four bedroom detached houses
- 3 x bedroom detached houses
- Total site area 1.065 acres
- CIL PAYMENT OF £488,060.79
- full vacant posession
- WAVERLEY BOROUGH PLANNING REF: WA/2024/01263
- All services connected to the site - water, gas, electricity, drains
PROPERTY DETAILS:
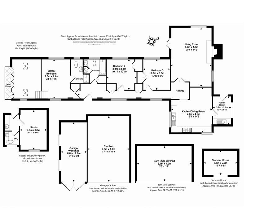
SALE BY PRIVATE TREATY/INFORMAL TENDER. FINAL OFFERS TO BE RECEIVED BY FRIDAY 30 APRIL 2026 - PLANNING REF NO: WA/2024/01263A prime Haslemere development site with detailed consent for 5 new units:- 2 x four bedroom detached houses of 2,410 sq ft 3 x three bedroom detached houses ranging from 1259-1345 sq ft plus the original barn style bungalow of 1677 sq ft sell-on value of £685,000-£725,000.Total site area: 1.065 acres, the site is approached off the Sturt Road, Haslemere. All plans and copyright will be passed on to the successful purchaser, a list of the available drawings and application details are attached. Exchange of contracts will be required within four weeks of receipt of papers and completion to be 2-4 weeks thereafter at a mutually convenient date.Re-sale estimations : the detached houses are between £1.4-1.5 million each, the smaller detached property ranging from £725-775,000.Interested parties are advised to undertake their own market research before submitting any offers. All offers to be submitted in writing to Mark Steward, Clarke Gammon Haslemere: mark.steward@clarkegammon.com with comprehensive finance arrangements, lawyers, previous development in the area if appropriate, proof of funds if cash purchase and company profile and offer amount with any conditions if applicable. No fees are needed on the purchase - the vendor will pay agents fees.








