PROPERTY LOCATION:
KEY FEATURES:
- Attractive 4 bedroom detached house
- Arts & crafts 1920's features
- 3 good size reception rooms
- Kitchen/breakfast/utility room
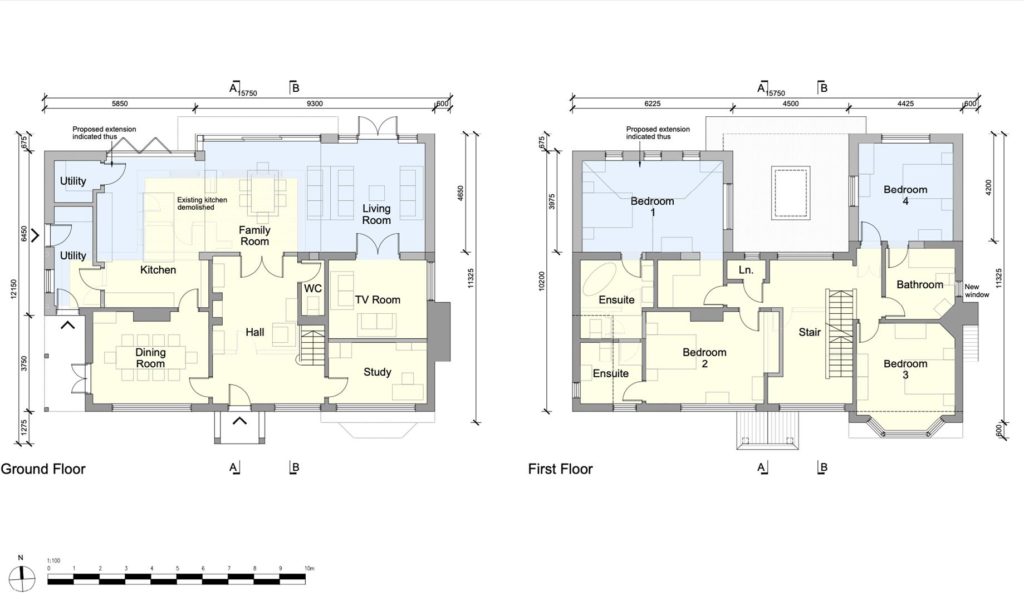
- Planning Permission to Extend & Re model
- Main bedroom with dressing room and ensuite bathroom
- 3 further bedrooms and family bathroom
- No onward chain
- Level garden
- Adjacent to Haslemere recreation ground and close to National Trust at Blackdown
PROPERTY DETAILS:
An attractive and unique arts & crafts style 1920's detached family house in a level, highly regarded location adjacent to Haslemere recreation ground, with planning permission to extend.April Wood is a handsome and well proportioned 4 bedroom detached family home with level front and rear gardens set back from Scotland Lane and just a stones throw from Haslemere recreation ground. In keeping with its era there are character features such as tile hanging and leaded light windows most of which are secondary glazed. The property has scope for modernisation and has planning permission WBC Ref WA/2024/00582 for a 2 storey extension and loft conversion. On the ground floor are 3 well balanced reception rooms - a triple aspect living room with stone fireplace, a twin aspect dining room and L-shaped study with a cloakroom off. To the rear of the property and largely open plan is the L-shaped kitchen, breakfast room and utility area. On the first floor are 4 bedrooms with the main bedroom, bedroom 2 and bedroom 3 all enjoying a front aspect. The main bedroom has its own dressing room and ensuite bathroom and there is also a useful and spacious loft space.April Wood has a a generous driveway finished with stone shingle and brick edging and screened by attractive planting. The rear garden will have a stone paved terrace and turfed lawn. Some of the images have been enhanced for marketing purposes
Tenure
Freehold
GARDENS AND GROUNDS
April Wood has a a generous driveway finished with stone shingle and brick edging and screened by attractive planting. The rear garden with a stone paved terrace and turfed lawn.










