PROPERTY LOCATION:
KEY FEATURES:
- AVAILABLE TO RESERVE OFF PLAN
- OUTSTANDING SPECIFICATION
- AWARD WINNING DEVELOPER - ASPEN HOMES
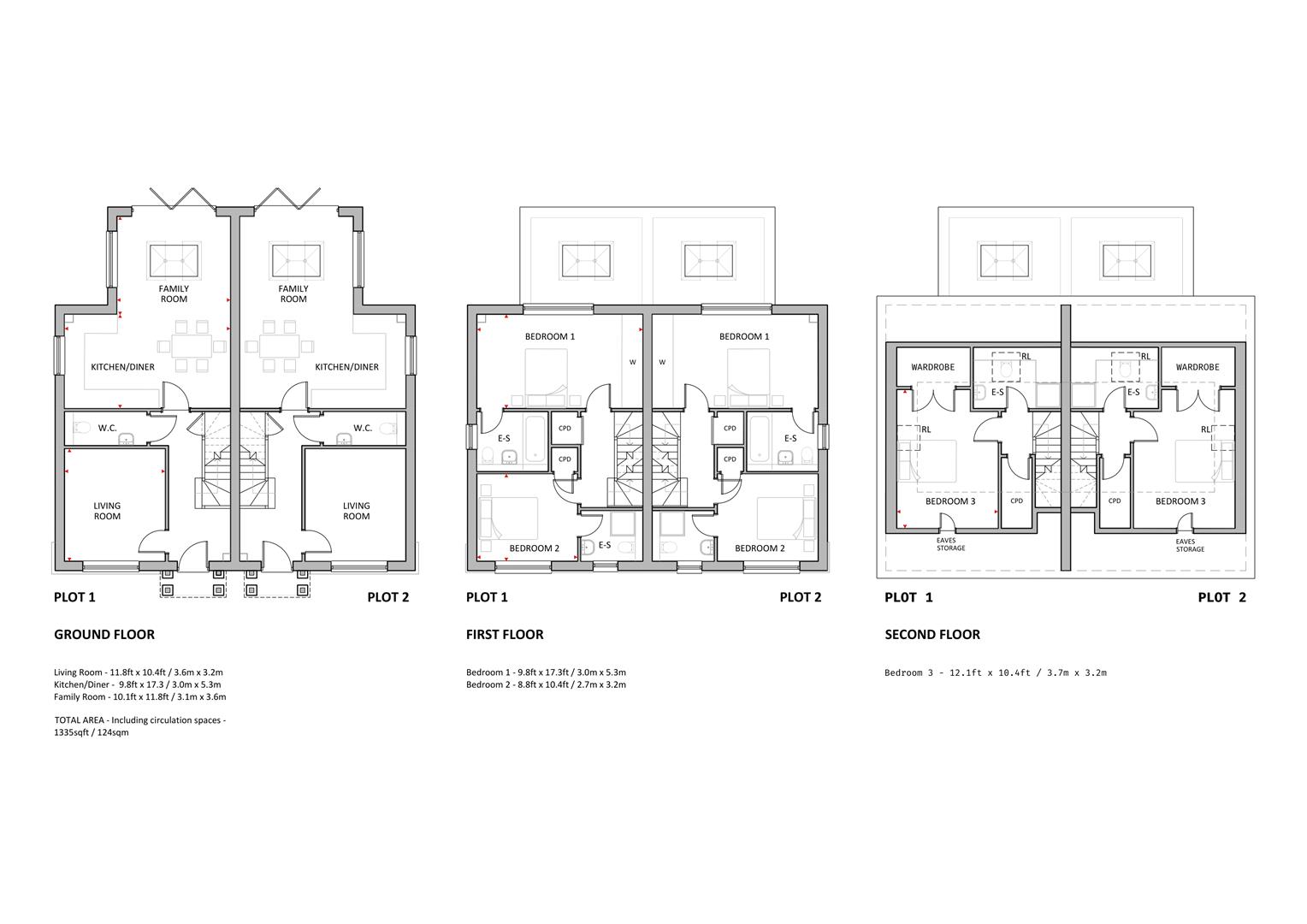
- THREE DOUBLE BEDROOMS
- THREE LUXURY BATHROOMS
- BUILT IN WARDROBES
- OPEN PLAN KITCHEN/LIVING/DINING
- ADDITIONAL LIVING ROOM
- TWO PARKING SAPCES
- 10 YEAR NEW HOME GUARANTEE UPON COMPLETION
PROPERTY DETAILS:
** AVAILABLE TO RESERVE OFF PLAN NOW**Renowned for their exacting standards and extremely high quality of build, AWARD WINNING DEVELOPER, Aspen Homes, are proud to present Willow Place; a BESPOKE DEVELOPMENT of just six luxuriously crafted THREE, FOUR and FIVE BEDROOM HOMES.The bespoke nature of the development perfectly portrays Aspen Homes mandate: Inspirational design and aspirational living.PLOT 2: A WONDERFUL THREE BEDROOM SEMI-DETACHED HOME OF SOME 1335SQFT - TWO PARKING SPACES.This niche development is situated in the Surrey village of Merrow, the perfect location for those who want the very best of both town and country living. A short walk from an array of shops in Merrow, and some two miles from Guildford, Willow Place provides fantastic access to all local amenities including the historic Guildford High Street, the Tunsgate Shopping Centre and numerous superb restaurants, coffee shops and bars. FOR DETAILS AND FULL SPECIFICATION PLEASE DOWNLOAD THE FULL BROCHURE.
PROPERTY INFORMATION:
RECENTLY VIEWED PROPERTIES :
| 4 Bedroom Detached House - Shalford Road, Guildford | £800,000 |
| 3 Bedroom Semi-Detached House - West Close, Fernhurst | £425,000 |











