PROPERTY LOCATION:
KEY FEATURES:
- Redevelopment opportunity
- Town centre location
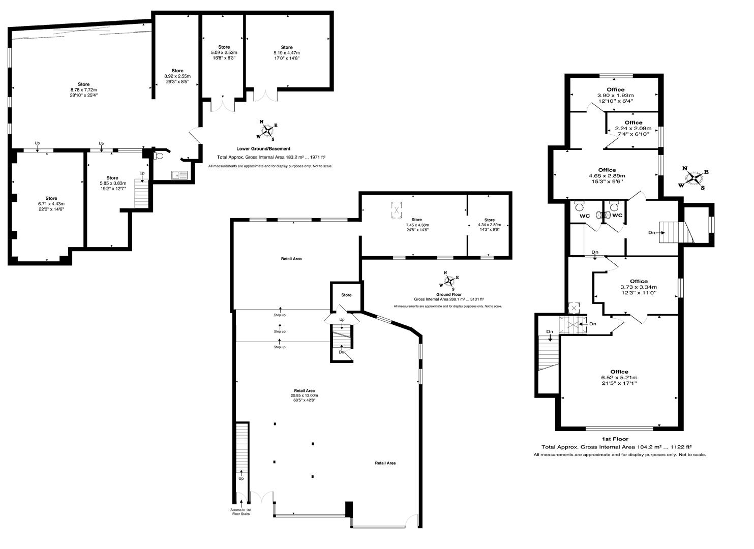
- Currently 6200 sq ft of retail, office & storage space
- Freehold
- Car parking at rear
PROPERTY DETAILS:
Suitable for a variety of redevelopment opportunities, but probably best suited to a residential/commercial mix. Two storage units which are currently vacantThe driveway is owned by the property and Allen Avery Interiors has a right of way across this, but there is no public right of way.
PROPERTY INFORMATION:
RECENTLY VIEWED PROPERTIES :
| 4 Bedroom Detached House - Ontario Way, Liphook | £895,000 |




