PROPERTY LOCATION:
KEY FEATURES:
- Retirement property for sale
- Beautiful, energy saving, low maintenance over 60s
- Stunning communal lounge
- Guest suite
- Lovely sociable shared landscaped gardens
- amenities on the doorstep
- spectacular 1 bedroom apartment in Liphook,
- Pets allowed
- 24/7 call system
PROPERTY DETAILS:
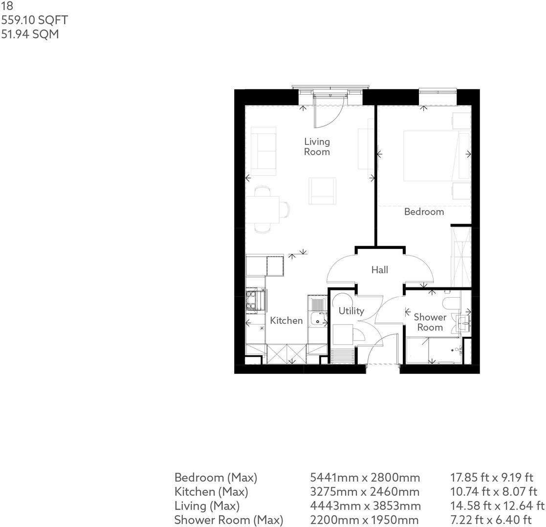
This spectacular 1 bedroom apartment in Liphook, Hampshire is part of the Flora Place development from the award-winning McCarthy Stone. A private retirement apartment, Apartment 32 is located on the second floor, is low-maintenance and contains extra safety features. See the exclusive benefits and highlights this property has to offer in the development information.







