PROPERTY LOCATION:
KEY FEATURES:
- Unique opportunity to restore and extend a former winery residence
- Planning permission approved for refurbishment and extension
- Period, unlisted cottage and barn with immense character
- Attractive and secluded west-facing plot with stream, waterfall and woodland
- Excellent scope for reconfiguration
- 0.35 acres of private grounds
- Located in a highly desirable village setting
- Currently uninhabitable
PROPERTY DETAILS:
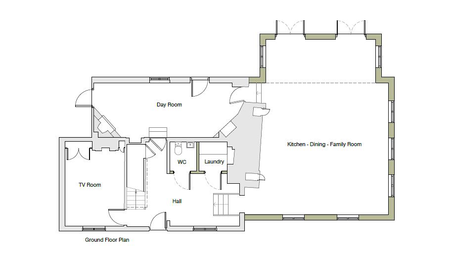
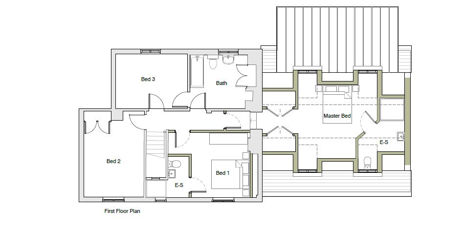
A rare and exciting opportunity to acquire a truly unique property set within approximately 0.35 acres of picturesque gardens, woodland, and waterfall, all privately situated on the peaceful outskirts of the highly desirable village of Lurgashall. Windfallwood House is a non designated heritage asset, currently uninhabitable, but it benefits from consent for extension and refurbishment to around 2,400 sq. ft. plus the cellar which is a further 185sqft and benefits from habitable ceiling heights and natural light with access to the garden. It also presents the opportunity for demolition and rebuild subject to planning.In total the property sit in grounds of around 0.35 acres of gardens all privately set with a west facing aspect.Lurgashall is a thriving and picturesque village within the South Downs National Park, with an historic green and popular country pub, The Noah's Ark. Viewings can be undertaken by the vendors agents by prior appointment.
PROPERTY INFORMATION:
RECENTLY VIEWED PROPERTIES :
| 2 Bedroom Semi-Detached House - Fernden Heights, Haslemere | £785,000 | 
 
             
                                        
                                




















