PROPERTY LOCATION:
KEY FEATURES:
- Unique opportunity to restore and extend a former winery residence
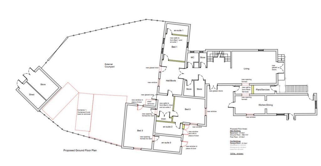
- Planning permission approved for new side and rear extension to house Planning Ref: SDNP/25/04282/HOUS
- Period, unlisted cottage and barn with immense character
- Attractive and secluded west-facing plot with stream, waterfall and woodland
- Excellent scope for reconfiguration or multiple unit development
- 2.25 acres of private grounds
- Located in a highly desirable village setting
- Available as a whole or in two separate lots
PROPERTY DETAILS:
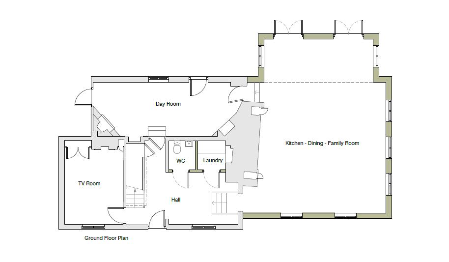
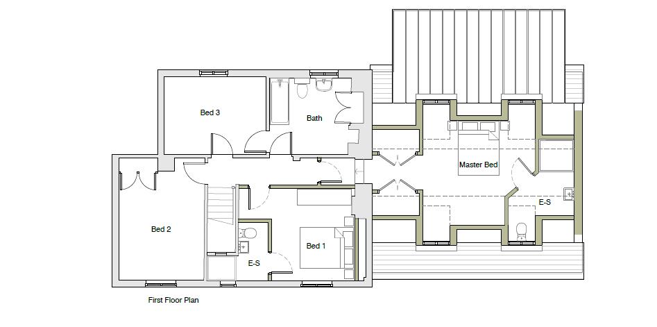
Planning Ref: SDNP/25/04282/HOUSA rare and exciting opportunity to acquire a truly unique property set within approximately 2 .25 acres of picturesque gardens, woodland, and waterfall, all privately situated on the peaceful outskirts of the highly desirable village of Lurgashall. A very interesting and unusual pair of properties and project, probably not mortgageable, but giving somebody the opportunity to create their own dwellings, either for an expanding family or dual family living. Originally the well-known Lurgashall winery, the current owners have secured planning permission to convert the barns into stylish residential accommodation, with a total footprint of around 7,300 sq. ft. While current consent is for both the refurbishment and extension of the house and conversion of the barn into one dwelling, the scale and layout present the potential to replan for two or even three homes, subject to approval. None of the buildings are listed, offering further flexibility for developers or private buyers seeking a bespoke country lifestyle.Windfall Wood House is located adjacent to the barns, and is a non designated heritage asset, currently uninhabitable, but it benefits from consent for extension and refurbishment to around 2,400 sq. ft. plus the cellar which is a further 185sqft and benefits from habitable ceiling heights and natural light with access to the garden. It also presents the opportunity for demolition and rebuild subject to planning.In total the properties sit in grounds of around 2.25 acres of gardens, woodland meandering stream and waterfall, all privately set with a west facing aspect.Lurgashall is a thriving and picturesque village within the South Downs National Park, with an historic green and popular country pub, The Noah's Ark. Viewings can be undertaken by the vendors agents by prior appointment. It is planned to have some open afternoons or mornings, and interested parties will be notified in due cours































