PROPERTY LOCATION:
KEY FEATURES:
- Planning consent for detached family home
- A truly private rural setting
- Close to Milford station with access to London Waterloo
- Planning Application: WA/2024/01296
- Approximate plot size of 3.5 acres
- Access to Godalming and A3 within close proximity
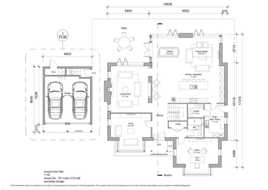
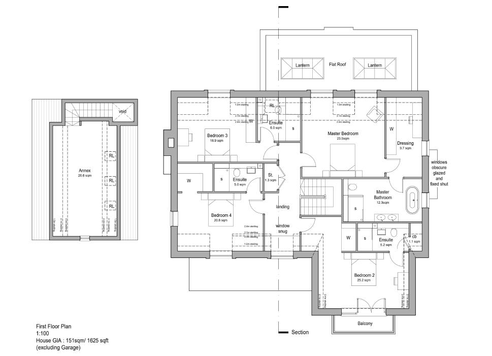
- Gross sq. footage 3,748 plus garage and storage above
- Grounds backing due West
PROPERTY DETAILS:
A truly unusual planning permission located in one of the premier locations in South West Surrey. Close to West Surrey Golf Club, having 3.5 acres of garden, paddocks, and less formal grounds, this plot has been consented for a significant detached family home of 3,748 sq. ft. plus double garage, with storage above. This house should suit somebody wishing to build their own characterful home, as the CIL payment on this is approximately £250,000, however would be zero if built by a new owner occupier.









